Leading civil construction company in Alappuzha | Emerging land developers Alappuzha,Eranakulam | Lakshya Constructions & Interiors







Siyad, Alappuzha

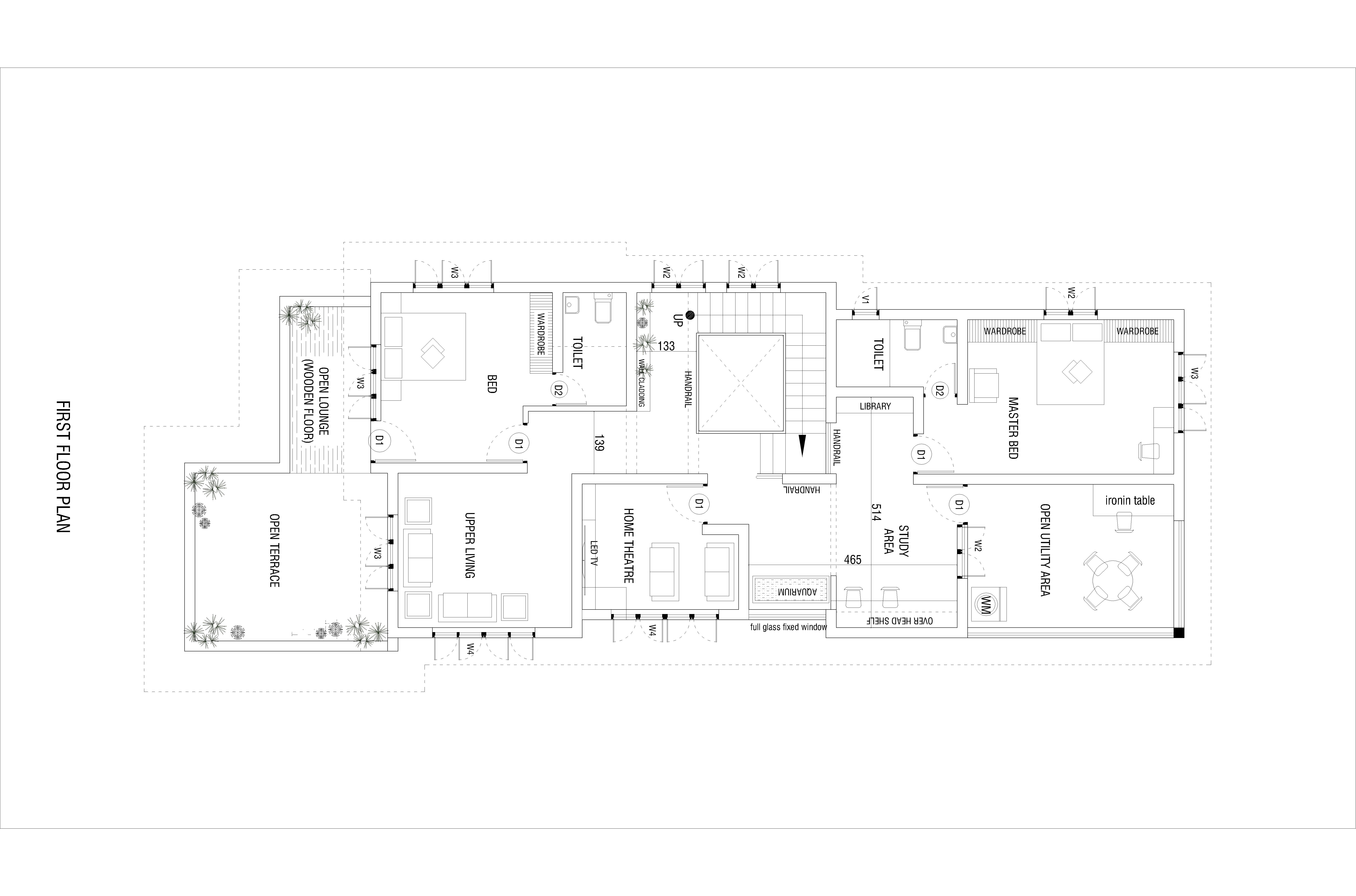
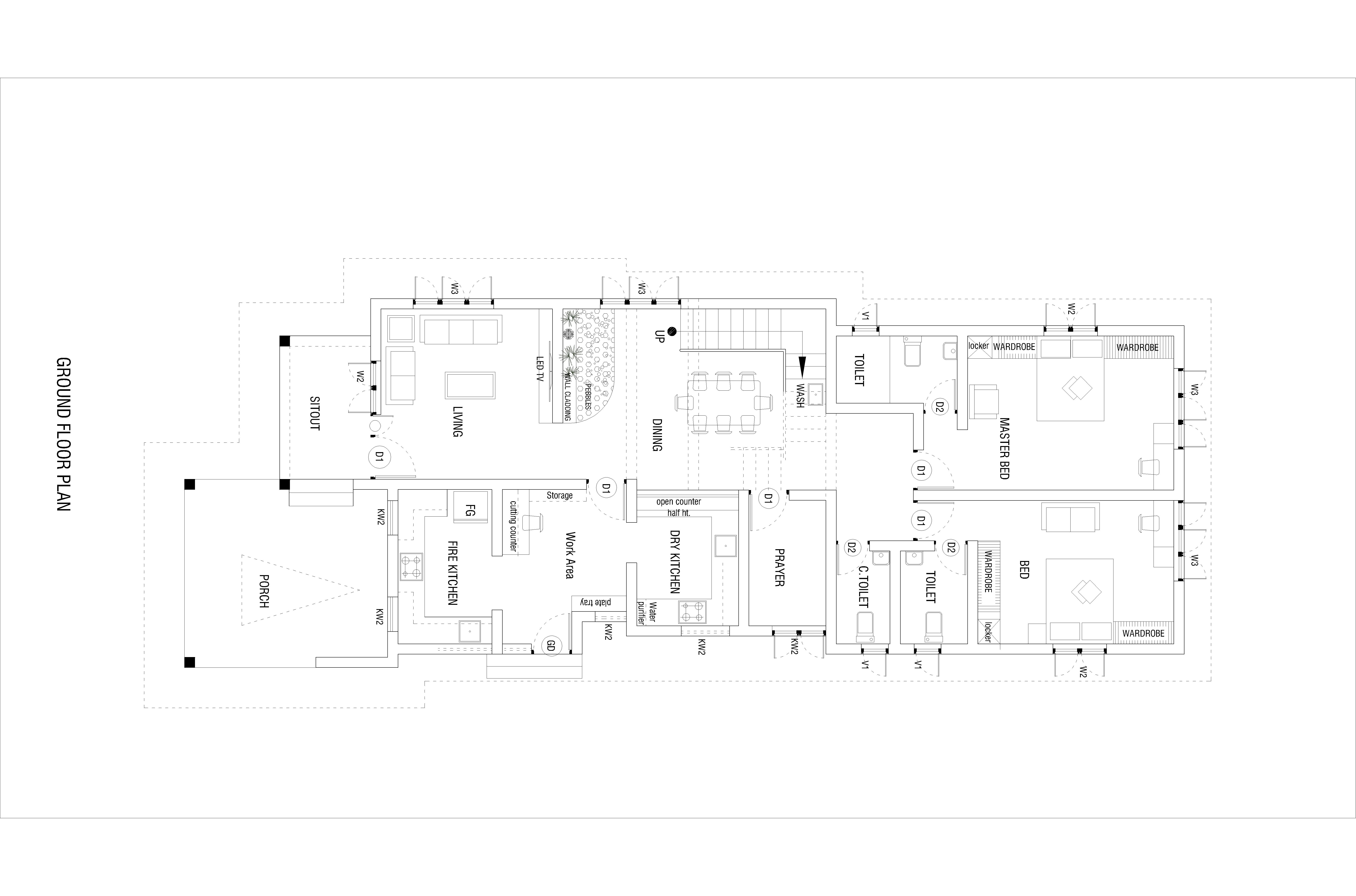
Siyad’s home is 3500 Sq.ft luxury villa, at Alappuzha. Home is built with traditional and a fusion of modern architectural design and a keen sence of functionality have gone into its planning. Villa have a porch, sit out, living area, dining area, Prayer area, 4 bedrooms and all attached toilets, common toilet ,kitchen, working kitchen, home theatre ,study area and wide balcony.

 Lakshya Constructions & Interiors kerala ,
Lakshya Constructions & Interiors kochi ,
Lakshya Constructions & Interiors alappuzha ,

GROUND FLOOR

 Lakshya Constructions & Interiors kerala ,
Lakshya Constructions & Interiors kochi ,
Lakshya Constructions & Interiors alappuzha ,

FIRST FLOOR

 Lakshya Constructions & Interiors kerala ,
Lakshya Constructions & Interiors kochi ,
Lakshya Constructions & Interiors alappuzha ,

SECOND FLOOR

SPECIFICATIONS

FOUNDATION

RCC M20 Column footing and plinth beam.

MASONRY AND PLASTERING

With good quality brick masonry 20 cm thick .

PLASTERING WORKS

With P sand.

FLOOR  FINISHING

With double charged vitrified tiles for entire area except toilets. Premium quality ceramic tiles for toilets. Granites for staircase, sitouts and kitchen counter.

JOINERY

Polished cheru teak door frame and shutter for front door and french window. For all internal doors Anjily frame, Mahagony style and HDF shutter. For toilets PVC Laminated doors.

PAINTING

Two coat emulsion over two coat putty for internal walls and ceilings, Exterior emulsion for external walls.

ELECTRICAL

Wiring with supreme quality PVC insulated copper cables, adequate light and fan points, 6A/16A plug points controlled by ELCB and MCB's with indipendent energy meter. Elegant modular switches of premium make. Provision for AC in all bed rooms.

SANITARY

Sanitary ware shall be premium quality snow white colour. At a bath room one normal EWC Closet, wash basin, shower, mixer tap, heater point and provision for exhaust fan.

 
budject homes in kerala , 
budject homes in alappuzha ,	
Builders and land developers in kerala ,

Call Us : +91- 8281611381